453.9 м2
Проект будинку Ux22 P
Ціна проекту
36 700грн
Ви можете отримати цей проект безкоштовно, при замовленні будівництва даного будинку в нашій компанії

Загальна площа

Площа забудови
371.8 м2

Рекомендовані мін. розміри ділянки
Ширина: 26.51 м
Довжина: 21.61 м

Висота
7.57 м

Кут нахилу покрівлі
6/30

Кубатура
1520 м3
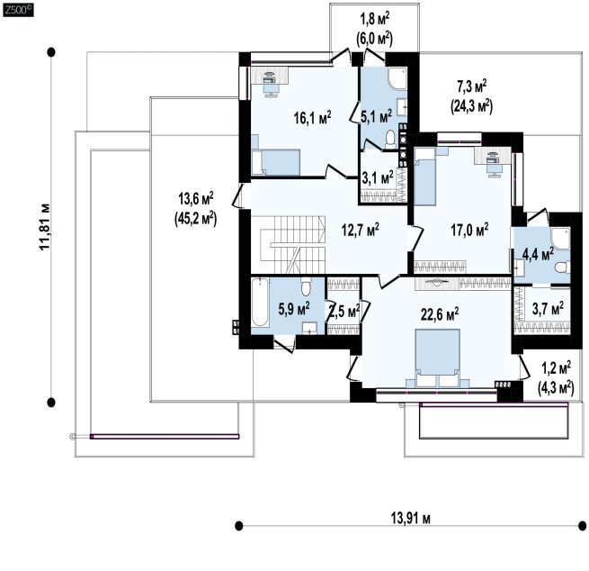
Лінійні розміри приміщень
Скачати безкоштовно
Характеристики об'єкта
Категорія
Особняки від 350 м²
Поверх
2-поверхові
Кількість спалень
4+
Ванни і санвузли
3+
Довжина фасаду
13.61
Ширина фасада
20.51
Рекомендована Мін.Довжина ділянки
21.61
Рекомендована Мін.Ширина ділянки
26.51
Площа забудови
371.8
Матеріал стін
Керамічний блок, газобетон, цегла
Призначення
Для однієї родини
Площа даху
220.68
Під ключ
11126196
Під оздоблення
9427858
Ціна будівництва
7012691
Загальна площа
453.9
Потрібна консультація?
Залиште свої координати і наш менеджер зв'яжеться з вами найближчим часом
Схожі об'єкти