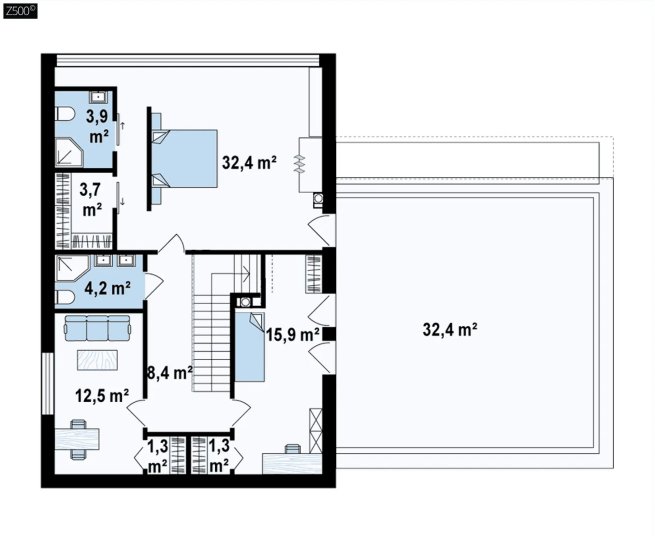
165.2 м2
Проект будинку Ux205
Ціна проекту
26 600грн
Ви можете отримати цей проект безкоштовно, при замовленні будівництва даного будинку в нашій компанії

Загальна площа

Площа забудови
173.7 м2

Рекомендовані мін. розміри ділянки
Ширина: 22.16 м
Довжина: 20.55 м

Висота
7.4 м

Кут нахилу покрівлі
20

Кубатура
525.39 м3
Характеристики об'єкта
Категорія
Комфортні будинки від 150 до 250 м²
Поверх
2-поверхові
Кількість спалень
3
Ванни і санвузли
3
Довжина фасаду
12.55
Ширина фасада
16.16
Рекомендована Мін.Довжина ділянки
20.55
Рекомендована Мін.Ширина ділянки
22.16
Площа забудови
173.7
Матеріал стін
Керамічний блок, газобетон, цегла
Призначення
Для однієї родини
Площа даху
156.26
Під ключ
5499223
Під оздоблення
4714399
Ціна будівництва
3551465
Загальна площа
165.2
Потрібна консультація?
Залиште свої координати і наш менеджер зв'яжеться з вами найближчим часом
Схожі об'єкти