264.4 м2
Проект будинку U74
Ціна проекту
27 800грн
Ви можете отримати цей проект безкоштовно, при замовленні будівництва даного будинку в нашій компанії

Загальна площа

Площа забудови
268.7 м2

Рекомендовані мін. розміри ділянки
Ширина: 31.58 м
Довжина: 18.31 м

Висота
8.33 м

Кут нахилу покрівлі
220

Кубатура
1546 м3
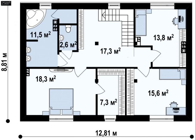
Лінійні розміри приміщень
Скачати безкоштовно
Характеристики об'єкта
Категорія
Садиби від 250 до 350 м²
Поверх
2-поверхові
Кількість спалень
4
Ванни і санвузли
3+
Довжина фасаду
10.31
Ширина фасада
25.58
Рекомендована Мін.Довжина ділянки
18.31
Рекомендована Мін.Ширина ділянки
31.58
Площа забудови
268.7
Матеріал стін
Керамічний блок, газобетон, цегла
Призначення
Для однієї родини
Площа даху
362
Під ключ
7228775
Під оздоблення
6000012
Ціна будівництва
4442668
Загальна площа
264.4
Фасади об'єкта
Потрібна консультація?
Залиште свої координати і наш менеджер зв'яжеться з вами найближчим часом
Схожі об'єкти