175.5 м2
Проект будинку U63
Ціна проекту
22 800грн
Ви можете отримати цей проект безкоштовно, при замовленні будівництва даного будинку в нашій компанії

Загальна площа

Площа забудови
108.3 м2

Рекомендовані мін. розміри ділянки
Ширина: 16.82 м
Довжина: 18.88 м

Висота
7.51 м

Кут нахилу покрівлі
350

Кубатура
416 м3
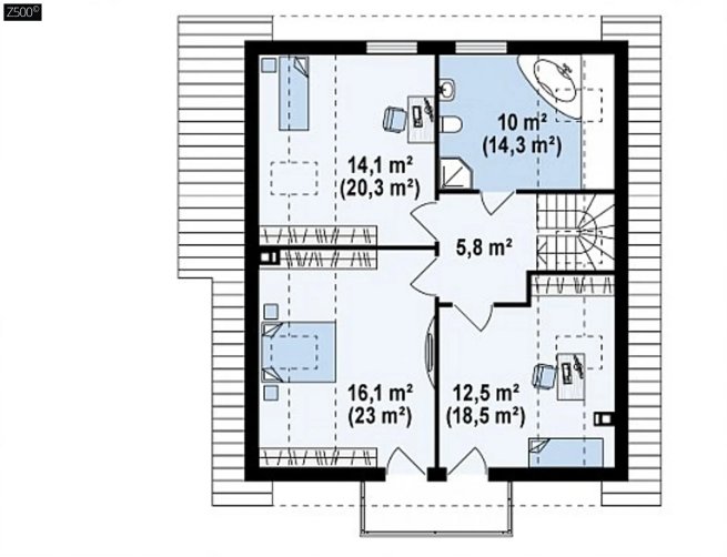
Лінійні розміри приміщень
Скачати безкоштовно
Характеристики об'єкта
Категорія
Комфортні будинки від 150 до 250 м²
Поверх
З мансардою
Кількість спалень
3
Ванни і санвузли
2
Довжина фасаду
10.88
Ширина фасада
10.82
Рекомендована Мін.Довжина ділянки
18.88
Рекомендована Мін.Ширина ділянки
16.82
Площа забудови
108.3
Матеріал стін
Керамічний блок, газобетон, цегла
Призначення
Для однієї родини
Площа даху
16456
Під ключ
3805937
Під оздоблення
3105371
Ціна будівництва
2368689
Загальна площа
175.5
Фасади об'єкта
Потрібна консультація?
Залиште свої координати і наш менеджер зв'яжеться з вами найближчим часом
Схожі об'єкти