109.5 м2
Проект будинку U465
Ціна проекту
20 200грн
Ви можете отримати цей проект безкоштовно, при замовленні будівництва даного будинку в нашій компанії

Загальна площа

Площа забудови
129.5 м2

Рекомендовані мін. розміри ділянки
Ширина: 23.81 м
Довжина: 17.61 м

Висота
7.19 м

Кут нахилу покрівлі
350

Кубатура
416.02 м3
Характеристики об'єкта
Категорія
Компактні будинки від 100 до 150 м²
Поверх
1-поверхові
Кількість спалень
2
Ванни і санвузли
2
Довжина фасаду
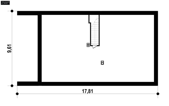
9.61
Ширина фасада
17.81
Рекомендована Мін.Довжина ділянки
17.61
Рекомендована Мін.Ширина ділянки
23.81
Площа забудови
129.5
Матеріал стін
Керамічний блок, газобетон, цегла
Призначення
Для однієї родини
Площа даху
196
Під ключ
5377551
Під оздоблення
4418423
Ціна будівництва
3374300
Загальна площа
109.5
Потрібна консультація?
Залиште свої координати і наш менеджер зв'яжеться з вами найближчим часом
Схожі об'єкти