127.8 м2
Проект будинку U212 GL
Ціна проекту
22 800грн
Ви можете отримати цей проект безкоштовно, при замовленні будівництва даного будинку в нашій компанії

Загальна площа

Площа забудови
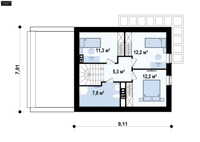
101.7 м2

Рекомендовані мін. розміри ділянки
Ширина: 19.21 м
Довжина: 15.91 м

Висота
7.68 м

Кут нахилу покрівлі
400

Кубатура
318.6 м3
Характеристики об'єкта
Категорія
Компактні будинки від 100 до 150 м²
Поверх
З мансардою
Кількість спалень
4
Ванни і санвузли
2
Довжина фасаду
7.91
Ширина фасада
13.21
Рекомендована Мін.Довжина ділянки
15.91
Рекомендована Мін.Ширина ділянки
19.21
Площа забудови
101.7
Матеріал стін
Керамічний блок, газобетон, цегла
Призначення
Для однієї родини
Площа даху
147.4
Під ключ
3356006
Під оздоблення
2785440
Ціна будівництва
2064180
Загальна площа
127.8
Фасади об'єкта
Потрібна консультація?
Залиште свої координати і наш менеджер зв'яжеться з вами найближчим часом
Схожі об'єкти