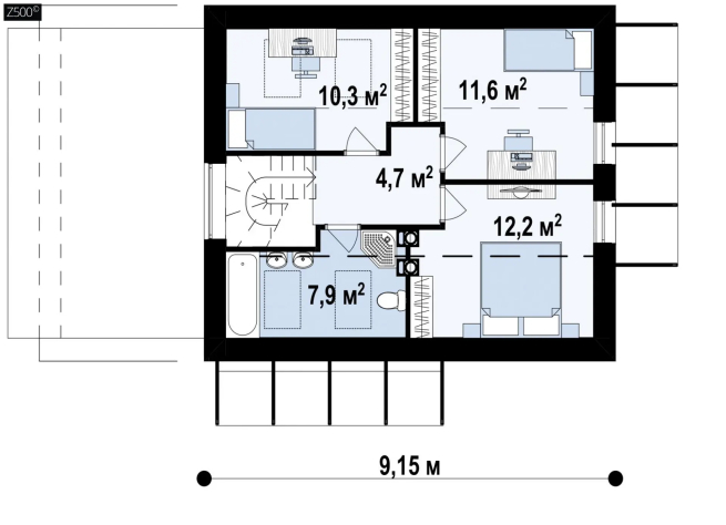
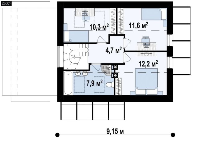
118.7 м2
Проект будинку U211 GL
Ціна проекту
20 200грн
Ви можете отримати цей проект безкоштовно, при замовленні будівництва даного будинку в нашій компанії

Загальна площа

Площа забудови
102.8 м2

Рекомендовані мін. розміри ділянки
Ширина: 18.81 м
Довжина: 15.41 м

Висота
7.26 м

Кут нахилу покрівлі
400

Кубатура
404 м3
Лінійні розміри приміщень
Скачати безкоштовно
Характеристики об'єкта
Категорія
Компактні будинки від 100 до 150 м²
Поверх
З мансардою
Кількість спалень
4
Ванни і санвузли
2
Довжина фасаду
7.41
Ширина фасада
12.81
Рекомендована Мін.Довжина ділянки
15.41
Рекомендована Мін.Ширина ділянки
18.81
Площа забудови
102.8
Матеріал стін
Керамічний блок, газобетон, цегла
Призначення
Для однієї родини
Площа даху
147
Під ключ
3017503
Під оздоблення
2493837
Ціна будівництва
1845940
Загальна площа
118.7
Потрібна консультація?
Залиште свої координати і наш менеджер зв'яжеться з вами найближчим часом
Схожі об'єкти