120.68
120.68
3
13.5
18.7
2
Компактный и функциональный двухэтажный дом с классической двускатной крышей. Фасад отделан светлой штукатуркой с акцентными вставками из серого декоративного кирпича на углах и входной группе, что придает зданию современный вид.
• Общие данные архитектурных решений;
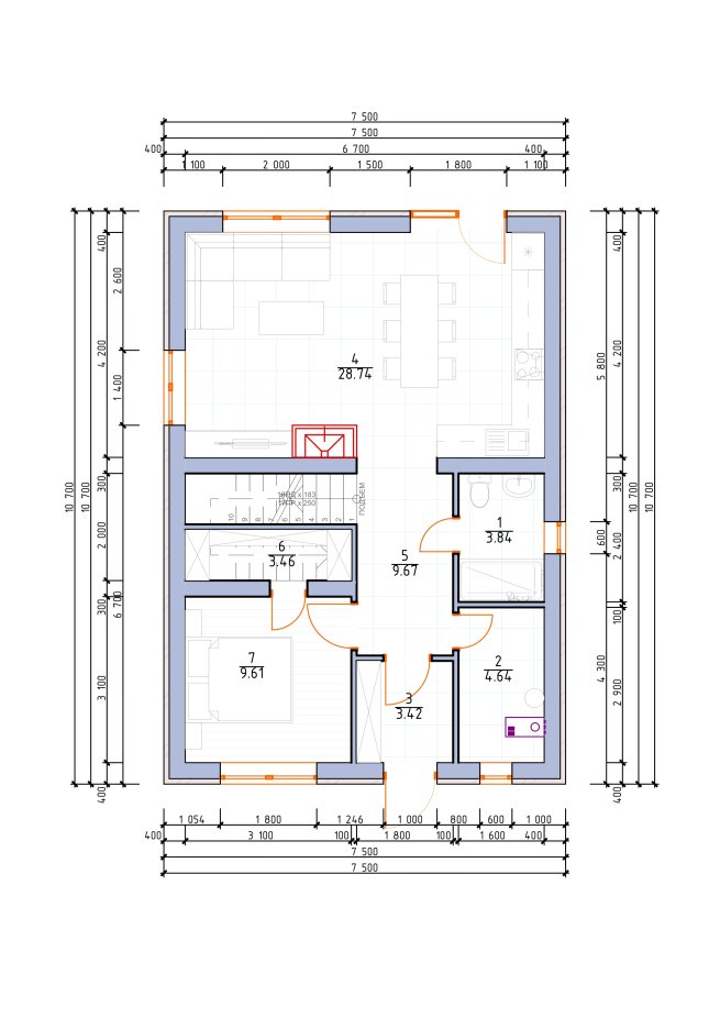
• Маркировочный план 1-го этажа;
• План с расположением мебели;
• План кладки;
• План крыши;
• Фасады здания (4 проекции);
• Разрезы здания;
• План полов;
• Вентканалы (если кирпич);
• Экспликация помещений этажей;
• Ведомость перемычек;
• Ведомость проемов;
• Спецификация к плану кладки;
• Ведомость внешней отделки фасадов дома;
• Ведомость заполнения оконных и дверных проемов;
• Экспликация полов;
• Узлы - разрезы по стенам, устройство перемычки, коньковый гребень, примыкание к дымовой трубе, подшивка кровли, устройство деревянной обшивки, армирование террасы, опирание перегородок на плиту пола 1-го этажа, опирание внешней стены на фундамент.
• Общие данные конструктивных решений;
• Схемы расположения монолитных фундаментов;
• Схемы расположения сборных фундаментов;
• Чертежи выполнения монолитных элементов сборных фундаментов;
• Схемы расположения колонн;
• Чертежи выполнения монолитных колонн;
• Схемы расположения монолитных поясов;
• Схемы расположения закладных деталей;
• Схемы расположения элементов перекрытия;
• Схемы расположения элементов крыши;
• Спецификации к схемам расположения монолитных фундаментов;
• Спецификации к схемам расположения сборных фундаментов;
• Спецификации к выполнению монолитных элементов сборных фундаментов;
• Спецификации к схемам расположения колонн;
• Спецификации к чертежам монолитных колонн;
• Спецификации к армированию монолитного пояса;
• Спецификации к закладным деталям;
• Спецификации элементов перекрытия;
• Спецификации к схемам расположения элементов крыши;
• Ведомость деталей монолитных фундаментов;
• Ведомость деталей армопоясов;
• Ведомость деталей закладных деталей;
• Ведомость деталей монолитных элементов сборных фундаментов;
• Ведомость деталей монолитных колонн;
• Узлы - разрез монолитных фундаментов;
• Узлы - устройство фундамента;
• Узлы - разрезы монолитных армопоясов;
• Узлы - разрез монолитных колонн;
• Узлы - закладные детали;
• Узлы - стыковка балок перекрытия;
• Узлы - Разрез 1-1 крыши;
• Узлы крыши;
• Узлы - Разрез 2-2 крыши.
Инженерный раздел можно приобрести за дополнительную оплату. Его стоимость составляет 50% от стоимости архитектурно-строительной части, указанной на странице проекта.
• Система отопления (планы, схема, спецификация оборудования и материалов);
• Система водоснабжения и канализации (план, схема, спецификация оборудования и материалов);
• Силовые электрические сети;
• Подробное описание и характеристики всех элементов инженерных систем.
Адаптация фундамента проводится на основании результатов инженерно-геологических изысканий. Типовой проект рассчитан на средние показатели, но очень часто геологические особенности земельного участка могут повлиять на конструктив фундамента.
В доме мы проводим большую часть жизни – это правило справедливо для подавляющего большинства людей. Дизайн интерьера – это особое искусство сделать большую часть жизни лучшей, наполнить её комфортом и уютом.
Подключение высокоскоростного интернета и кабельного телевидения.
Этот пакет станет прекрасным подспорьем для контроля и проверки действий подрядчиков на всех этапах строительных работ от устройства фундамента до возведения кровли и отделки помещений. Более того док
Строительство дома стоит начинать только после получения всех необходимых разрешений. Иначе это чревато штрафами, которые с начала 2013 года существенно возросли.
С какой надеждой на лучшее будущее мы выбираем собственный дом! Как тщательно мы исследуем наши потребности и желания, ведь такой выбор делаем все-таки один раз в жизни. И если, пересмотрев все проект
Инженерно-геологические изыскания проводятся с целью определения особенностей земельного участка и несущей способности грунта. Именно данные геологии лежат в основе прочного фундамента, а значит и все
Геодезическое исследование решает вопросы площади участка и его точные геодезические размеры, географические координаты и особенности рельефа. Определение перепадов высот на участке, влияющих на проект зданий и инженерных сооружений.
Согласитесь, красивый дом на голом участке смотрится незакончено и неуютно. Так же неуютно чувствуют себя и хозяева.
Ведомость материалов – это полный список всего, что необходимо для строительства дома. В этом документе указано абсолютно все до последнего гвоздя! Благодаря полной детализации, точному расчету всех строительных материалов, вы сможете поставить на строй площадку все необходимое без избыточных затрат или недобора.
Уверенность во внешнем виде – это уверенность в себе и отличное настроение :-) Для дома это также важно как и для человека, и рисковать внешним видом дома может дорого стоить. Мы сделаем для вашего дома "одежду" самую достойную, с помощью услуги "Дизайн экстерьера": разработаем дизайн экстерьера и визуализируем его в 3D.
|
НУЛЕВОЙ ЦИКЛ (ФУНДАМЕНТ) |
||
|
*Фундамент на полях:
|
Фундамент ленточный из блоков ФБС:
|
Фундамент ленточный из блоков несъемной опалубки:
|
Возможно строительство альтернативных видов фундамента, например УШП, плитный и т.п., согласно пожеланиям клиента и по подтверждению конструктора.
*Оптимальная цена.
|
СТЕНЫ |
|
|
|
Возможно строительство альтернативных видов стен, например газобетон D500, толщина 375 (400 мм), кирпич керамическая толщина 250, 380, 510 мм и.т.п, согласно пожеланиям клиента и по подтверждению конструктора.
|
ПЕРЕКРЫТИЕ ПЕРВОГО ЭТАЖА |
||
|
|
|
Возможно строительство альтернативных видов перекрытия, например, несъемная опалубка TERIVA и.т.п, согласно пожеланиям клиента и по подтверждению конструктора.
|
ПЕРЕКРЫТИЕ ВТОРОГО ЭТАЖА |
||
|
|
|
Возможно строительство альтернативных видов перекрытия, например, несъемная опалубка TERIVA и.т.п, согласно пожеланиям клиента и по подтверждению конструктора.
| ЛЕСТНИЦЫ НА ВТОРОЙ ЭТАЖ | ||
|
||
|
КРОВЛЯ |
|
|
|
Возможно строительство альтернативных видов кровли, например керамическая плитка, компазитная черепица и т.п., согласно пожеланиям клиента и по подтверждению конструктора.
* Оптимальная стоимость, включенная в цену строительства коробки дома.
|
ОКНА И ВХОДНАЯ ГРУППА |
|
|
|
Возможно строительство альтернативных видов окон и дверей, например дерево, алюминий, деревянный массив и т.п., согласно пожеланиям клиента и по подтверждению конструктора.
|
ФАСАД |
|
|
|
Возможно строительство альтернативных видов фасада, например облицовочный кирпич, вентилируемый фасад и т.п., согласно пожеланиям клиента и по подтверждению конструктора.
|
КРОВЛЯ |
|
|
|
Возможно строительство альтернативных видов кровли, например, деревянная вагонка и.т.п, согласно пожеланиям клиента и по подтверждению конструктора.
*Оптимальная цена.
|
СТЕНЫ |
|
|
|
Возможно строительство альтернативных видов простенков, например гибсокартон и.т.п, согласно пожеланиям клиента и по подтверждению конструктора.
|
САНТЕХНИКА |
|
|
|
Возможно строительство альтернативных видов отопления, например теплые стены и т.п., согласно пожеланиям клиента и по подтверждению конструктора.
|
ЭЛЕКТРИКА |
СТЯЖКА И ШТУКАТУРКА |
|
|
| Возможно строительство альтернативных видов электричества, например, прокладка наружных декоративных кабелей и.т.п, согласно пожеланиям клиента и по подтверждению конструктора. | Возможно строительство альтернативных видов штукатурки одновременно декоративным слоем и.т.п, согласно пожеланиям клиента и по подтверждению конструктора. |
|
ПЕРЕКРЫТИЕ ВТОРОГО ЭТАЖА |
|
|
|
Возможно строительство альтернативных видов перекрытия, например, несъемная опалубка TERIVA и.т.п, согласно пожеланиям клиента и по подтверждению конструктора.
*Оптимальная цена.
|
САНТЕХНИК |
ЕЛЕКТРИКА |
|
|
|
ФИНИШНАЯ ОТДЕЛКА ПОЛА |
ФИНИШНАЯ ОТДЕЛКА СТЕН |
|
|
|
ФИНИШНАЯ ОТДЕЛКА ПОТОЛКА |
ДВЕРИ, ОКНА И ЛЕСТНИЦЫ |
|
|
Специалисты компании Dnipribud выполняют отделку из любых материалов в соответствии с вашими предпочтениями.
Быстрый просмотр
129.2
3
9.01
10.51
2
Быстрый просмотр
124.1
4+
16.21
21.81
2
Быстрый просмотр
119.86
4+
14.21
20.51
2
Быстрый просмотр
112.2
3
17.72
16.89
3
Быстрый просмотр
112.2
3
17.72
16.89
3
Быстрый просмотр
124.1
4+
16.21
21.61
2