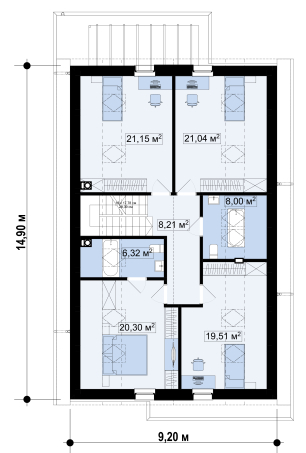
203.63
203.63
4+
17.37
23.69
3
• Загальні дані архітектурних рішень;
• Плани житлових поверхів;
• План покрівлі;
• Фасади будівлі;
• Розрізи будівлі;
• Експлікація приміщень поверхів;
• Відомість перемичок;
• Відомість зовнішнього оздоблення фасадів будинку;
• Відомість заповнення віконних та дверних отворів;
• Експлікація підлог;
• Вузли - влаштування перемички, коньковий гребінь, примикання до димової труби, підшивки покрівлі, армування тераси, спирання перегородки на плиту підлоги 1-го поверху.
• Загальні дані конструктивних рішень;
• Схеми розташування монолітних фундаментів;
• Схеми розташування збірних фундаментів;
• Креслення виконання монолітних елементів збірних фундаментів;
• Схеми розташування колон;
• Креслення виконання монолітних колон;
• Схеми розташування монолітних поясів;
• Схеми розташування закладних деталей;
• Схеми розташування елементів перекриття;
• Схеми розташування елементів даху;
• Специфікації до схеми розташування монолітних фундаментів;
• Специфікації до схеми розташування збірних фундаментів;
• Специфікації до виконання монолітних елементів збірних фундаментів;
• Специфікації до схеми розташування колон;
• Специфікації до креслень монолітних колон;
• Специфікації до армування монолітного поясу;
• Специфікації до закладних деталей;
• Специфікації елементів перекриття;
• Специфікації до схеми розташування елементів даху;
• Відомість деталей монолітних фундаментів;
• Відомість деталей армопоясів;
• Відомість деталей закладних деталей;
• Відомість деталей монолітних елементів збірних фундаментів;
• Відомість деталей монолітних колон;
• Вузли - переріз монолітних фундаментів;
• Вузли - влаштування фундаменту;
• Вузли - перерізи монолітних армопоясів;
• Вузли - переріз монолітних колон;
• Вузли - закладних деталей;
• Вузли - стикування балок перекриття;
• Вузли - Розріз 1-1 даху;
• Вузли даху;
• Вузли - Розріз 2-2 даху.
Інженерний розділ можна придбати за додаткову оплату. Його вартість становить 50% від вартості архітектурно-будівельної частини, зазначеної на сторінці проєкту.
• Систему розводок водопостачання і каналізації.
• Систему розводок опалення;
• Систему вентиляції;
• Обв'язку котла;
• Схеми розводок електропостачання;
• Схеми силових мереж;
• ВРП (вві́дно-розподі́льний при́стрій);
• Систему заземлення.
Компанія Z500 пропонує розширити можливості типових проєктів та адаптувати їх до своїх умов.
Адаптація фундаменту проводиться на підставі результатів інженерно-геологічних досліджень. Типовий проєкт розрахований на середні показники, але часто геологічні особливості земельної ділянки можуть вплинути на конструктив фундаменту.
Швидке та легке будівництво будинку. Наявність проєкту у кількох професіоналів одразу. Полегшення роботи конструктора, що адаптує проєкт.
Швидка заміна пошкоджених або втрачених документів.
Ви вже обрали проєкт удома? Ви розпочали детальний план його реалізації? Якщо так, тоді ви вже думали про відповідну систему опалення!
Щоб захистити Ваш будинок від удару блискавки, потрібен певний комплекс заходів. Він включає встановлення пристроїв захисту від прямих ударів блискавки та вторинних її впливів - різких змін електричної напруги.
У будинку ми проводимо більшу частину життя – це правило справедливе для переважної більшості людей. Дизайн інтер'єру – це особливе мистецтво зробити більшу частину життя кращим, наповнити його комфортом та затишком.
Підключення високошвидкісного Інтернету та кабельного телебачення.
Цей пакет стане чудовою підмогою для контролю та перевірки дій підрядників на всіх етапах будівельних робіт: від улаштування фундаменту до зведення покрівлі та оздоблення приміщень.
Будівництво будинку варто розпочинати лише після отримання всіх необхідних дозволів. Інакше це загрожує штрафами.
З якою надією на краще майбутнє ми вибираємо власний будинок! Як ретельно ми досліджуємо наші потреби та бажання, адже такий вибір робимо один раз у житті.
Послуга «Адаптація проекту до сейсмозони» дозволить адаптувати практично будь-який наш проект навіть для найнебезпечніших ділянок, дозволених для житлової забудови.
Доповнення комфортний будинок зробить ваш будинок влітку прохолоднішим, взимку теплішим, ви зможете легко керувати його мікрокліматом. У будь-яку погоду та пору року ви почуватиметеся комфортно та затишно!
Інженерно-геологічні дослідження проводяться з метою визначення особливостей земельної ділянки та несучої здатності ґрунту. Саме дані геології є основою міцного фундаменту.
Геодезичне дослідження вирішує питання площі ділянки і її точні геодезичні розміри, географічні координати та особливості рельєфу. Визначення перепадів висот на ділянці, що впливають на майбутній проєкт будівель і інженерних споруд.
Погодьтеся, гарний будинок на голій ділянці виглядає незакінчено та незатишно. Так само незатишно почуваються й господарі.
Інженерний розділ містить у собі проекти всіх інженерних споруд та комунікацій: система водопостачання та каналізації, електромережа, вентиляційна система, система опалення. При необхідності в цьому розділі розміщують креслення протипожежної та охоронної сигналізації.
Відомість матеріалів — це повний перелік всього, що потрібно для будівництва будинку. У цьому документі зазначено абсолютно все до останнього цвяха! Завдяки повній деталізації, точному розрахунку всіх будівельних матеріалів, ви зможете поставити на буд майданчик все необхідне без надлишкових витрат або недобору.
Впевненість у зовнішньому вигляді - це впевненість в собі та відмінний настрій :-) Для будинку це так само важливо як і для людини, і ризикувати зовнішнім виглядом будинку може дорого коштувати. Ми зробимо для вашого будинку "одяг" самий гідний, за допомогою послуги "Дизайн екстер'єру": розробимо дизайн екстер'єру і візуалізуємо його в 3D.
На плоскій покрівлі продовж всієї зими може зібратися великий обсяг снігу, частково криги, які для конструкції будинку небезпеку не являють (наші проєкти враховують максимально можливі снігові навантаження). Але для покрівельного покриття утворення криги небажане.
|
НУЛЬОВИЙ ЦИКЛ (ФУНДАМЕНТ) |
||
|
*Фундамент на палях:
|
Фундамент стрічковий з блоків ФБС:
|
Фундамент стрічковий з блоків незнімної опалубки:
|
Можливо будівництво альтернативних видів фундаменту, наприклад: УШП, плитний та інші, згідно з побажаннями клієнта та за підтвердженням конструктора.
|
СТІНИ |
|
|
|
Можливо будівництво альтернативних видів стін, наприклад: газобетон D500 товщина 375 (400 мм), цегла керамічна товщина 250, 380, 510 мм та інші, згідно з побажаннями клієнта
та за підтвердженням конструктора.
|
ПЕРЕКРИТТЯ |
|
|
|
Можливо будівництво альтернативних видів перекриття, наприклад: незнімна опалубка TERIVA та інші, згідно з побажаннями клієнта та за підтвердженням конструктора.
|
СХОДИ НА ДРУГИЙ ПОВЕРХ |
|
|
|
|
ПОКРІВЛЯ |
|
|
|
Можливо будівництво альтернативних видів покрівлі, наприклад: керамічна плитка, композитна черепиця та інші, згідно з побажаннями клієнта та за підтвердженням конструктора.
|
МАНСАРДНІ ВІКНА |
|
|
|
*Оптимальна вартість, включена в ціну будівництва коробки будинку.
|
ВІКНА ТА ВХІДНА ГРУПА |
|
|
|
Можливо будівництво альтернативних видів вікон та дверей, наприклад: дерево, алюміній, дерев'яний масив та інші, згідно з побажаннями клієнта та за підтвердженням конструктора.
|
ФАСАД |
|
|
|
Можливо будівництво альтернативних видів фасаду, наприклад: облицювальна цегла, вентильований фасад та інші, згідно з побажаннями клієнта та за підтвердженням конструктора.
|
ПОКРІВЛЯ |
|
|
|
Можливо будівництво альтернативних видів покрівлі, наприклад: дерев'яна вагонка та інші, згідно з побажаннями клієнта та за підтвердженням конструктора.
*Оптимальна вартість, включена в ціну будівництва під оздоблення будинку.
|
СТІНИ |
|
|
|
Можливо будівництво альтернативних видів простінків, наприклад: гіпсокартон та інші, згідно з побажаннями клієнта та за підтвердженням конструктора.
|
САНТЕХНІКА |
|
|
|
Можливо будівництво альтернативних видів опалення, наприклад: теплі стіни та інші, згідно з побажаннями клієнта та за підтвердженням конструктора.
|
ЕЛЕКТРИКА |
СТЯЖКА ТА ШТУКАТУРКА |
|
|
| Можливо будівництво альтернативних видів електрики, наприклад: прокладка зовнішніх декоративних кабелів та інші, згідно з побажаннями клієнта та за підтвердженням конструктора. |
|
|
ПЕРЕКРИТТЯ ПЕРШОГО ПОВЕРХУ |
ПЕРЕКРИТТЯ МАНСАРДНОГО ПОВЕРХУ |
|
|
Можливо використання альтернативних видів утеплювача таких як: ППУ (пінополіуретан), Арболіт та інші, згідно з побажаннями клієнта та за підтвердженням конструктора.
|
СХОДИ НА ДРУГИЙ ПОВЕРХ |
|
|
|
Можливо облицювання сходів альтернативних видів матеріалів, наприклад: граніті та інші, згідно з побажаннями клієнта та за підтвердженням конструктора.
*Оптимальна вартість, включена в ціну будівництва під чистове оздоблення будинку.
|
САНТЕХНІКА |
ЕЛЕКТРИКА |
|
|
|
ФІНІШНЕ ОЗДОБЛЕННЯ ПІДЛОГИ |
ФІНІШНЕ ОЗДОБЛЕННЯ СТІН |
|
|
|
ФІНІШНЕ ОЗДОБЛЕННЯ СТЕЛІ |
ДВЕРІ ТА ВІКНА |
|
|
*Оптимальна вартість, включена в ціну будівництва під ключ будинку.
Спеціалісти компанії Дніпробуд виконують оздоблення з будь-яких матеріалів відповідно до ваших вподобань.
Швидкий перегляд
200.1
4+
12.71
12.95
3
Швидкий перегляд
207.8
4+
18.21
23.61
2
Швидкий перегляд
206.8
3
20.91
23.81
3
Швидкий перегляд
197.4
4+
18.81
21.36
2
Швидкий перегляд
199.06
4+
14.34
23.52
3
Швидкий перегляд
194.7
4+
19.31
21
2
Швидкий перегляд
197
4+
21.31
19.41
2
Швидкий перегляд
200.82
4+
14.8
25.2
2
Швидкий перегляд
198.01
4+
18.61
22.32
3
Швидкий перегляд
203.7
4+
23.51
20.11
2